10/25)販売イベント開催♪
今すぐ住めるモデルハウスを販売中です
同日開催『初めてでも安心な住宅ローン相談』も

3,600万円(税+諸経費込み) LDK+WIC 32.37坪 土地87.05坪(3台駐車可能)
ご成約キャンペーン
『選べる特典』+『山崎実業 tower』10万円
カタログ
プレゼント

    小美玉市羽刈にある田山建設モデルハウスをご希望の方にお譲りいたします。

    ご成約キャンペーンにリビング・ダイニング家具セット・リビングエアコン・子供部屋エアコン・オーダーカーテン・テレビアンテナ・網戸まで全て込みの価格です。また、諸経費(一部)も含んでおり設備・性能・キャンペーンとお得なモデルハウスです。

    ・耐震等級3

    ・長期優良住宅認定

    ・断熱性能等級5

    ・一次エネ等級6

    ・オールPanasonic設備

    ・Panasonic太陽光パネル

    ・EV充電コンセント

    ・省メンテナンス光触媒の外壁

    ・高性能樹脂サッシ/複層ガラス窓

    ・高効率ルームエアコン

    ・オール電化/エコ給湯

    どの季節でも快適に暮らせる高性能な建物です

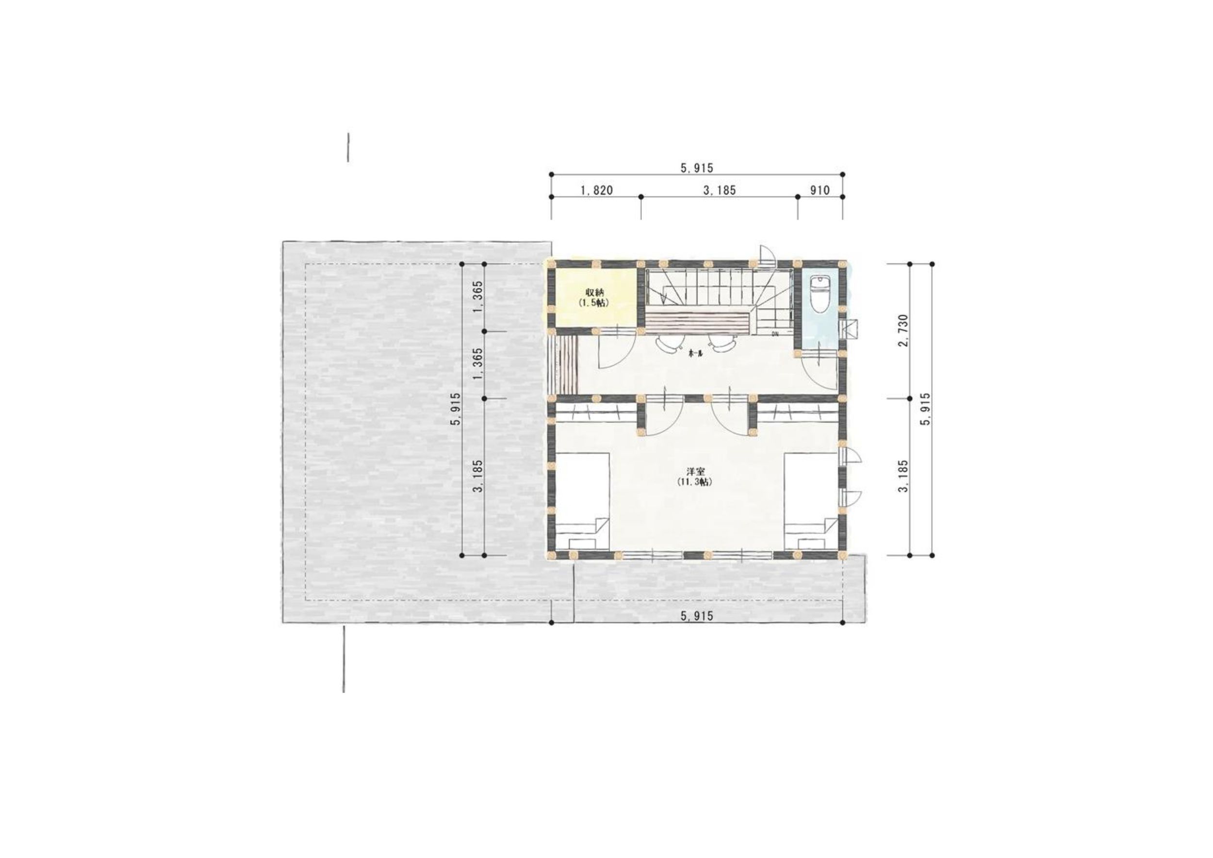
    平屋の様な2階建て~30年後も暮らしやすい間取りの家~

    快適な暮らしが長く続く家だからこそ、『今も将来も暮らしやすい』に着目した間取りを採用しました。

    生活の中で行き来の多い場所を回遊動線で繋げ移動のスムーズさを確保。1階にある主寝室は子育てをしながらの家事や将来1階ですべての生活が完結出来るように配置。洗面室は「洗う干す片づける」が一か所で終わるように広めにとり、洗面室と脱衣室は扉で仕切って家族が気兼ね無く使えるように配慮しました。

     2階はコンパクトに子供部屋のみの構成でホールにはスタディースペースを作りました。子供部屋はスペースを有効利用出来るようにオープンクローゼットを採用。1.5帖の納戸には成長していく子供の思い出の物を沢山しまえます。

    駐車4台以上可能な広いスペースをコンクリート仕上げでとり、庭スペースの部分は遊び場や家庭菜園・園芸、趣味ガレージなどご自由にお使いいただけます。

      ・JR羽鳥駅まで約1800m 車6分

      ・常磐道岩間インターまで約4700m 車8分

      ・ツルハドラッグ羽鳥店まで約270m 徒歩4分

      ・ウェルシア小美玉美野里店まで約350m 徒歩5分

      ・TAIRAYA美野里店まで約500m 徒歩7分

      【物件詳細】

      ・所在:茨城県小美玉市羽刈639-10・土地面積:公簿287.77㎡(87.05坪)・建物面積:延床107.02㎡(32.37坪)1F72.04㎡ 2F34.98㎡・間取り:3LDK+WIC(LDK19.4 主寝室5.2 子供部屋11.3 納戸1.5)・用途地域:1種低層・都市計画:非線引区域・建ぺい率/容積率:40%/80%・土地権利:所有権・築年月:2024年4月・引渡し:即時

      To top
      〒311-3404
      茨城県小美玉市飯前1376-179
      TEL:0299-37-3465
      FAX:0299-37-3467
      新築やリフォームに関するご質問やご相談などございましたら、お気軽にお問い合わせ下さい。
      尚、ご返信にはお時間を頂く場合がございますので、予めご了承下さい。